top of page
RD VE SVAHU
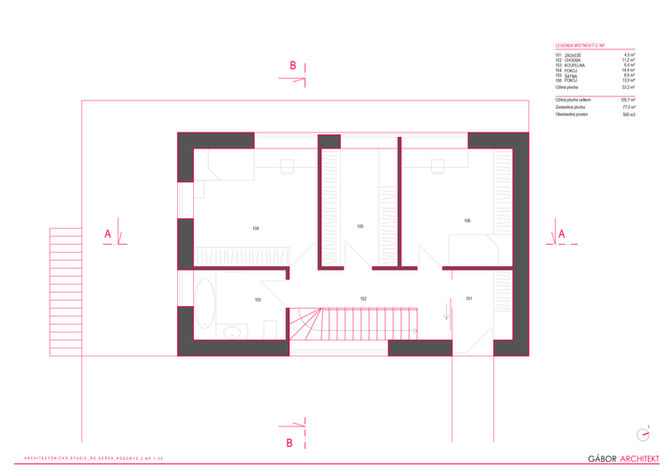
Menší pozemek ve výrazném svahu umožnil objekt částečně zapustit a využít tak obě úrovně terénu. Od vstupu se objekt tváří jako jednopodlažní stavba se sedlovou střechou, do zahrady se však otevírá podlaží s obývacím pokojem a kuchyní, které je na severní straně doplněno ložnicí s vlastní koupelnou. Ve vstupním podlaží jsou tři velké místnosti, z nichž nejmenší je řešena jako šatna mezi dvěma pokoji. Hmota stavby je vizuálně rozdělena použitím dřevěného obkladu suterénu a betonovou konzolou, která slouží jako stínění proti přehřívání v letních měsících. Dřevěný obklad fasády zde dále přechází v konstrukci terasy a ta plynule pokračuje křivkami zahrady.
ARCHITEKT
Ing. arch. Tomáš Gábor
MÍSTO
Zlínský kraj
DATUM
2019
FÁZE
studie, DSP

bottom of page








